C刘中辉
联系电话:010-85775818
Mobile:13381115162
C刘中辉经济人
/媒体/活动/主材联络
联系人:王经理
联系电话:15311666952
邮箱:1211522615@qq.com
香堂四合院 作者:刘中辉 708阅读




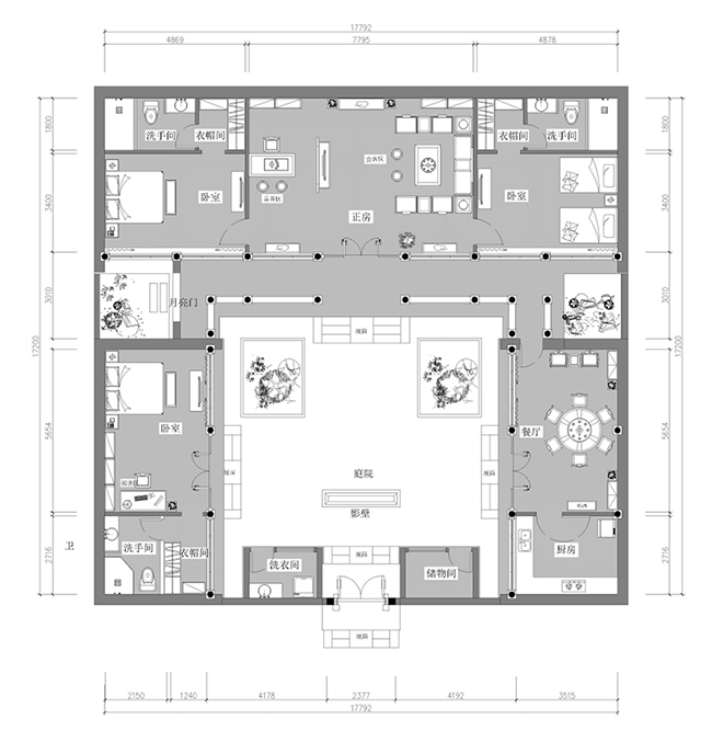
平面布置图

庭院鸟瞰图
悬山顶是我国一般建筑(如民居)中最常用的一种形式。其特点是屋檐悬伸在山墙以外,屋面上有一条正脊和四条斜脊,又称挑山或出山。

垂花门效果图
抱鼓石、朱门、垂花、彩画、宫灯,经典的中式元素点缀在青砖灰瓦间,在素朴间增添一抹精致。高雅的门头,也象征着此间主人的不俗的生活水准及文化品位。

庭院人视图
一进四合院,迎面就看见绿树红花,在房前对称栽着,那点点绿叶,在阳光下发清发亮。屋檐瓦当下,大红灯笼后,是那花团锦簇、灵活生动的苏式彩画。搭配雕梁绣户、丹楹刻桷,表现出一种专属东方的仪态万方与绚烂多姿。

小天井效果图
四合院设计,大,有轩昂之意;小,含清幽之美。透过游廊后的月亮门,可见方寸之间亦是郁郁葱葱、秀丽多姿。
巧妙将传统元素与自然景观相结合,演绎出谐和之道,使得整个空间所蕴含的内在气质内敛、平实而又精致,做到浑然天成,收放自如。

正房效果图
设计在空间布局上强调中式古典与现代的融合,根据室内外不同生活场景,增加空间的时光流动感。在仿古中增加现代的生活气息,通过对比产生碰撞,再用设计师圆融的修饰笔触将“矛盾”调和,以此手法研磨出巧妙的时代谐和感,让空间氛围显得别具一格且富有文化气息。

客厅效果图

客厅效果图

客厅效果图
追寻往昔,我们不难发现,真正的生活应该和植物、山水、平和、文化结合在一起。设计师将这些概念写入众多装饰元素:盆景、隔扇、山水画、梁架、博古架、青瓷古玩,通过充满匠心的布置合而为一,带给人一种自然亲切、古韵盎然的惬意体验。

东厢房效果图
简单实在的纯粹更让人安心,无压而清爽放松。素朴的原木家具叫人心生亲近,经过设计更显优雅和美观。以简驭繁,剥除扰嚷的冗杂,将空间气质表达得清新可人,让人不忍亵渎。

西厢房效果图
将对生活的热爱转成每一处设计的细腻,是刻意的留白,让空间更和谐。在功能性上兼顾美感,通过简洁大方的装饰元素,形成节奏丰富的“空间韵律”。

老人房效果图
除却繁冗雕饰,通过“少,即是多”打造禅意风骨。简简单单的中式感觉,让更多空间回归自然本真,也更符合中国古人对“删繁去奢,绘事后素”的生活理念。

主卧效果图
造型简洁的家具,色彩丰富的软装,通过色彩及形体变化的挖掘来调节空间视点。古典的装饰氛围搭配现代的典雅灯具,诠释出低调的奢华感。

主卧卫生间效果图
本次四合院设计,嵌入山水,融入自然。围绕“简练、安逸、自然”主题展开,具有古典、精致的独特气质。整体设计既有繁复的细节,又有留白的婉约,创造出简繁有度而不失文化底蕴的家居氛围。
